計畫背景與目的
本項目位於台北市大安區精華的東區商圈, 前身為「 正義國宅 」,屋齡約 35 年,在 1999 年 921大地震後遭判定為海砂屋與危樓,因此被劃定為都市更新單元。
如今透過連續的人行綠廊,垂直露臺的多樣性多層次植栽;綠屋頂創造生態跳島,在繁華喧鬧的城市之中,於有限的空間裡,創造豐富的綠意與自然,拉近城市與自然的距離。
整體設計
「台北之星 Diamond Towers」的設計理念以「鑽石」為核心。鑽石造型與光影:建築外觀使用藍色玻璃帷幕,其「鑽石切割面紋路」的設計,使整棟建築在不同角度下閃耀著如鑽石般的光芒,成為東區的耀眼地標,展現現代建築的精緻工藝與美學。複合式機能:「台北之星」將住宅、商場與辦公室融合,創造出多功能的複合式建築,滿足不同使用者的需求,並提供便捷的生活與工作環境。

圖1 歷史照片_都更前、後對照場景
四季行走的城市綠廊
以流動線條串聯捷運廣場,形塑舒適宜人的都市步行空間。楓香行道樹隨時間變換色彩,從春夏的翠綠到秋季的紅楓,讓街道展現四季流轉的景致。綠色廊道為城市注入自然氣息,使人們在漫步中感受季節的節奏與生活的詩意。即便身處繁忙的都市生活,我們仍不忘追求與自然共生的生活方式,持續在此書寫人與自然和諧共處的城市篇章,讓日常步行不僅是移動,更成為一場感受自然與城市交融的美好旅程。
菱鑽切面的無限延展
景觀設計以菱鑽的設計語彙,一座藝術裝置座落於一樓朝南的廊道之中。以重複而純粹的幾何單元為語言,交疊、連結、延展,構築出彷彿無限擴張的視覺意象,呼應建築本體的華麗姿態。作品選用黑、灰與透明鏡面不鏽鋼元件結合花崗石材質,層層切削出如鑽面般的多重折線,折射出細膩光影與晶體質感。金屬的鏡澤與石材的厚實交織出優雅而豐富的紋理,將珍貴與高雅的形體語彙融入建築脈絡之中,成為空間中耀眼的視覺焦點。

圖2 GFL景觀設計平面圖

一窗一景・綠意入心
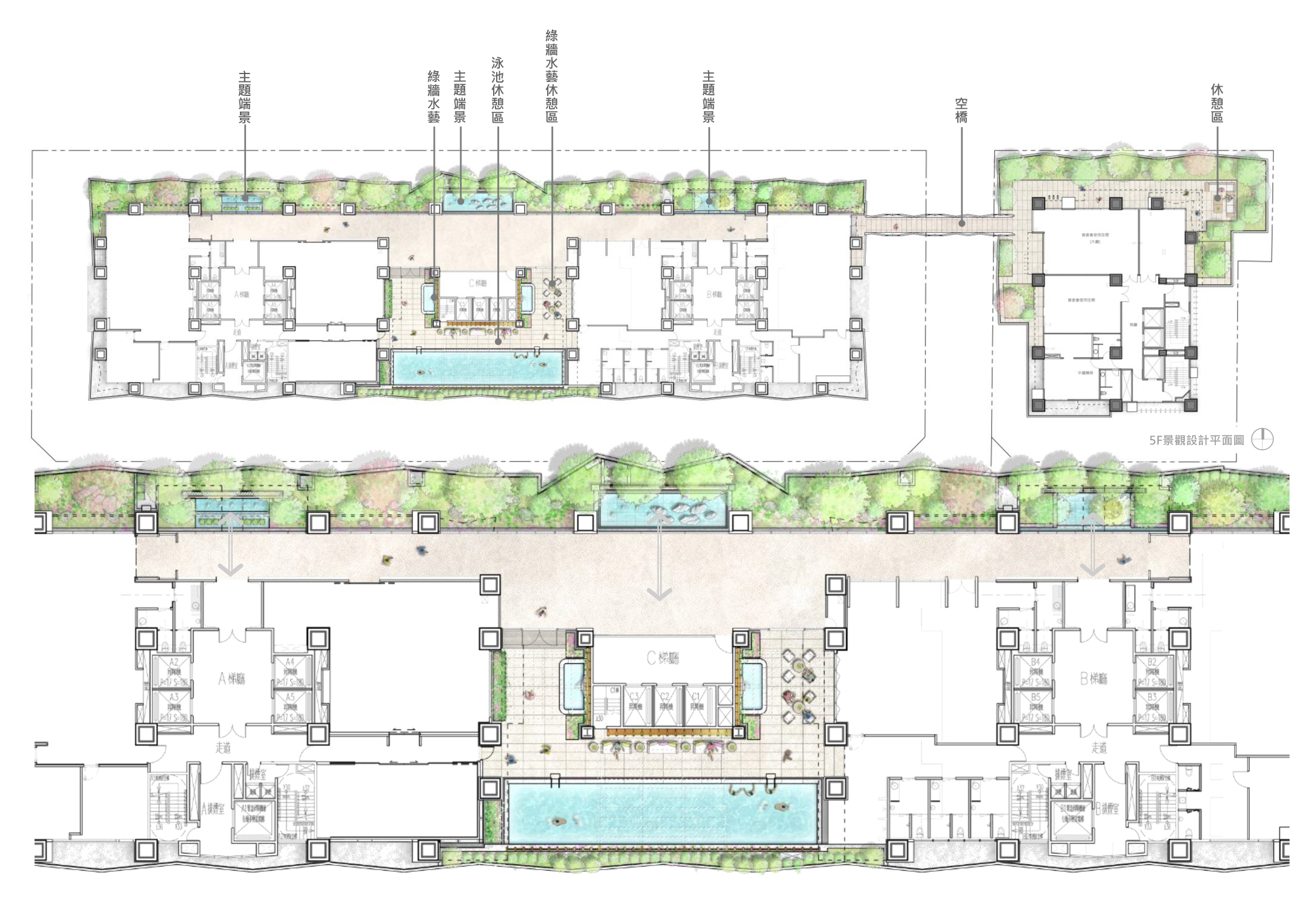
本案露臺花園縱深僅約四公尺,橫向卻綿延達九十二公尺。在這樣的狹長尺度裡,以「一窗一景」為設計理念,讓室內的每一扇窗都對應著一幅自然景象,於有限空間中創造出最大的綠意價值。人在這段細長的露臺中行進時,與景觀的距離被拉近,視角亦隨之收斂。當視野縮小,對細節的感知便被放大,每一處水景的流動、每一株植栽的姿態,都更值得細細品賞。因此,水景藝術與植栽配置的細節以更精緻的手法呈現,使自然景觀成為視線可及之處的詩意風景,讓綠意在窗前綻放,於心間流動。
四時流轉・自然為畫
以自然的植栽為畫布,織寫四季的詩篇。春華初綻,夏葉繁茂,秋果盈枝,冬枝含姿——日升月起、花開花落,時序在園中靜靜展開。不同的植栽以各自的節奏輪番登場,開花、結果、萌芽、落葉、變色……交織成一幅流動的季節畫卷。身處其間,步移景異,四時的氣息在花與葉的更迭中悄然流轉;人們在都市的喧囂裡,亦能細細感受自然的韻律,在時光的推移中與四季共舞,與自然同棲。

圖3 5FL景觀設計平面圖

圖4 5FL景觀設計_ 一窗一景 設計說明
城林共生・綠頂如詩
以環保綠屋頂為層疊的基底,編織出多樣而豐饒的都市森林。這片由人與自然共築的綠意,不僅為生物提供棲息之所,也孕育出多重的生態服務:調節城市熱島、吸納二氧化碳、吐納新鮮氧氣與芬多精,並以柔軟的綠網吸附空氣中的微塵。
隨
著生物多樣性的提升,城市的綠脈彼此連結,化作一片無形的森林,於鋼筋水泥間悄然蔓延。人在其間,不僅見綠於目,更感綠於心,體會自然與城市共生的詩意脈動。

圖5 7FL景觀設計平面圖




圖6 實質成果_GF

菱影綻放・晶華入境
本案作品以「光影菱鑽」為靈感源起,將鑽石切面的語彙融入設計之中,使內外空間相互呼應、場域與環境彼此交融,展現出鑽石獨有的優雅氣質。這份菱鑽印象不止於形體的描摹,更內化為空間的語言——晶體般的造型融入牆體之中,映照並回應著 Diamond Tower 的核心概念與建築姿態。碎鑽般的元素被隨性灑落於深色石材牆面之上,宛如光影在空間間舞動,散發出自華麗魅力中迸發的生命力。每一顆晶體的中心皆鏤空貫通,讓風拂樹影、花姿搖曳的自然動態穿越其中,成為主露臺舞台上的自然配角,與建築共演出一場光、影、風、綠交織的詩意盛宴。





圖7 實質成果_5FL
作品名稱:台北之星 Diamond Towers
基地位置:台北市忠孝東路三段
實施者/合建方:龍麟建設/三圓建設
建築外觀設計:日本 丹下憲孝建築師
景觀設計:瀚翔景觀國際股份有限公司
項目類型:景觀設計、景觀工程
面 積:7000m²
完成年份:2023