計畫緣起及目的
嘉油鐵馬道全長約3.1公里,前身為日據時期建造的輸油鐵道,用於運送日軍航空燃油至嘉義水上機場。鐵道於2003年停用後,嘉義市政府為保存歷史、促進觀光,向中油無償借地,2008年改建為自行車道,成為市區重要休閒空間。路線綠樹成蔭如綠色隧道,設有人車分流,沿途可賞荷花田與農村景色。隨遊客增加,部分設施老舊、功能不足,亟待改善。嘉油鐵馬道自輸油鐵道轉型為城市綠地廊帶,已成為市民晨昏運動場所。因位處北迴歸線,夏日白天炎熱,需營造舒適夜間光環境,引導市民善用夜間空間,兼顧歷史保存、環境品質與休憩體驗。

圖1 計畫目的
規劃設計訴求重點
基地橫跨嘉義市至嘉義縣,期望提供舒適且具連續性的路徑設計,讓居民與遊客能便利往來市區與鄉村,促進交通互動與城鄉交流。
一、打造鐵馬道光環境
仿油燈復古造型,展現舊時光風格韻味。並增加防眩光的遮光罩設計,提供舒適的光環境。
二、營造油鐵歷史特色廊帶
結合光環境優化,重現油鐵歷史意象,提升安全與遊憩體驗,讓夜間也能成為星光步行廊帶,延續在地記憶與特色。
三、城鄉綠廊串聯
整合嘉義市自行車與步行路網,統一標誌系統,設置色彩辨識與特色展演空間,延長遊客停留時間並增加互動性;同時串聯市區景觀亮點與活動,強化嘉油鐵馬道的可及性與整體遊憩功能。

圖2 嘉油鐵道規劃概念

(左)圖3 街燈造型與燈光設計
(中)圖4 夜間星光步行廊帶
(右)圖5 點線軸串連鐵馬道
實質成果內容
一、打造人本環境
修復人行鋪面與護欄,改善新民站、南京站節點空間,並增設公廁,提升安全、美觀與實用性。
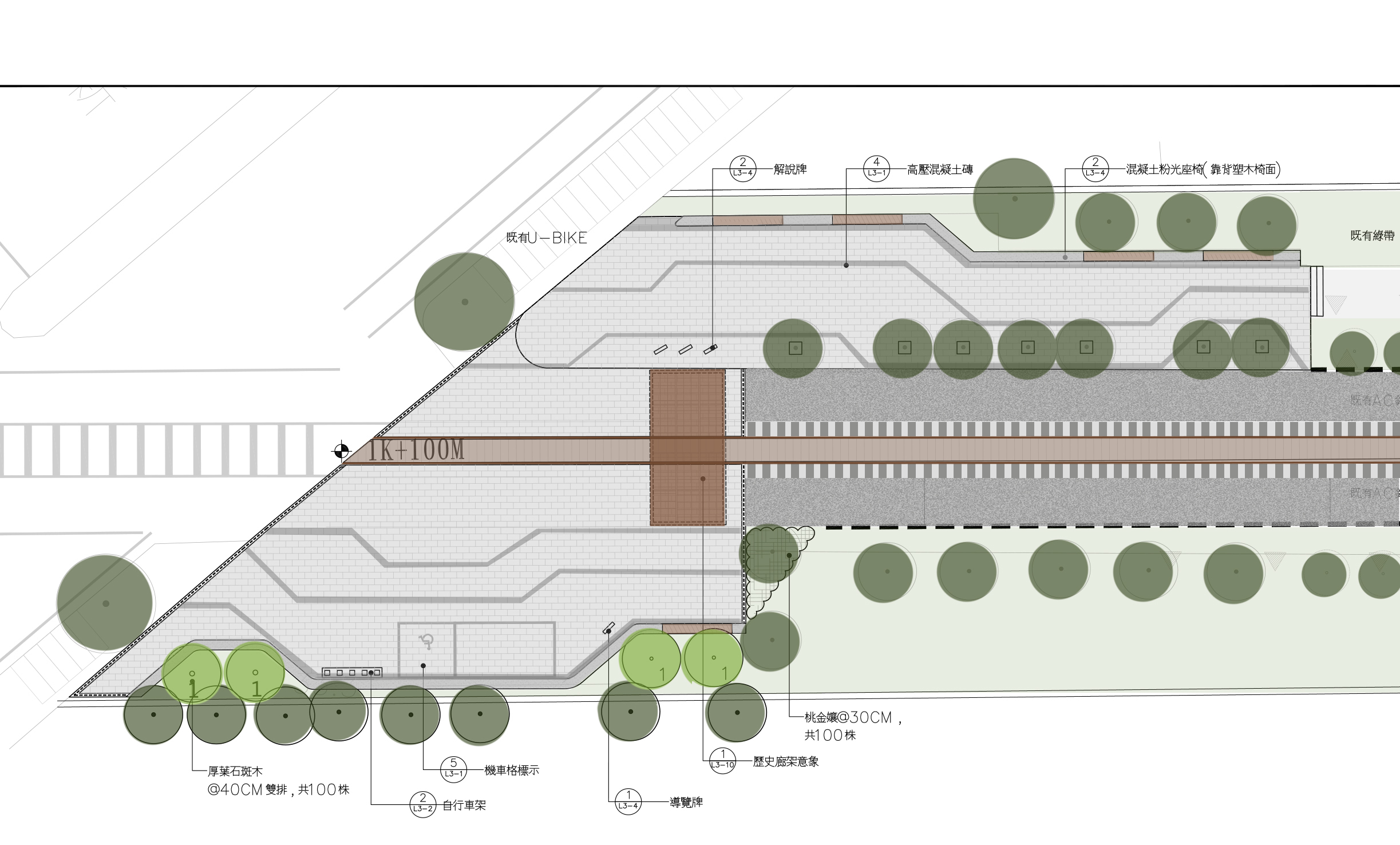
(一) 新民站及南京站:更新鋪面、增設歷史廊架與解說設施,整合休憩功能,保留喬木並劃設機車格。

圖6 新民路廣場平面配置圖

圖7 南京路廣場平面配置圖

(左)圖8 南京路廣場影像
(右)圖9 新民路廣場導覽設施
二、新設公共廁所
因用地限制,採組合式公廁,兼顧法規與使用需求。
(一) 全齡友善:三座公廁分設於南京路站、重慶一街與道將圳站,含男、女及無障礙親子廁。
(二) 永續利用:3,000 片回收木棧板作為外牆與屋頂,支撐構件亦取自現場回收。
(三) 智慧管理:南京路站導入 AI 公廁系統,人流、久佔與廁紙監測。
(四) 公廁照明:全天候監控,夜間照明持續開啟。

(左)圖10 原有步道木棧板
(中)圖11 公廁以回收木板與現地金屬建成,減少營建廢棄物。
(右)圖12 夜間11時至次日凌晨4時期間,公廁照明持續開啟。
三、施作全線夜間照明
汰換全線燈具,達成省電、不炫光、低色溫及美觀目標。
(一) 燈具更新:含兩側欄杆燈具全面更新。
(二) 新民站入口:設投光燈、藍色波紋燈、重塑廊架並展示歷史機車頭圖騰,營造舒適休憩氛圍。
(三) 南京站入口:設投光燈、藍色波紋燈、重塑廊架並打造多彩互動的感性廣場空間。

(左)圖13 新民路入口廣場拱門夜間影像
(右)圖14 新民路入口廣場拱門夜間影像

(左)圖15 南京路拱門光廊影像
(右)圖16 南京路拱門光廊影
計畫效益及量化數據

圖17 計畫效益及量化數據
作品名稱:嘉義市嘉油鐵馬道光環境與休憩節點
提升計畫工程
主辦單位:嘉義市政府觀光新聞處
地 點:嘉義市⻄區嘉油鐵⾺道
用 途:⾃⾏⾞道、綠園道、景觀廁所、城市
光廊、廣場
景觀設計:橙谷景觀規劃設計有限公司
材 料:⾼壓混凝⼟磚、預鑄緣⽯、鋼索護欄
、照明設施、景觀植栽
造 價:新台幣59,900,000元
設計時間:2023年03⽉-2023年09⽉
施工時間:2023年10⽉-2024年09⽉